Franklin Master Bathroom
Franklin Master Bathroom
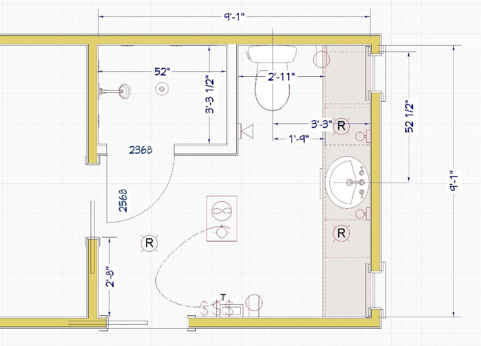
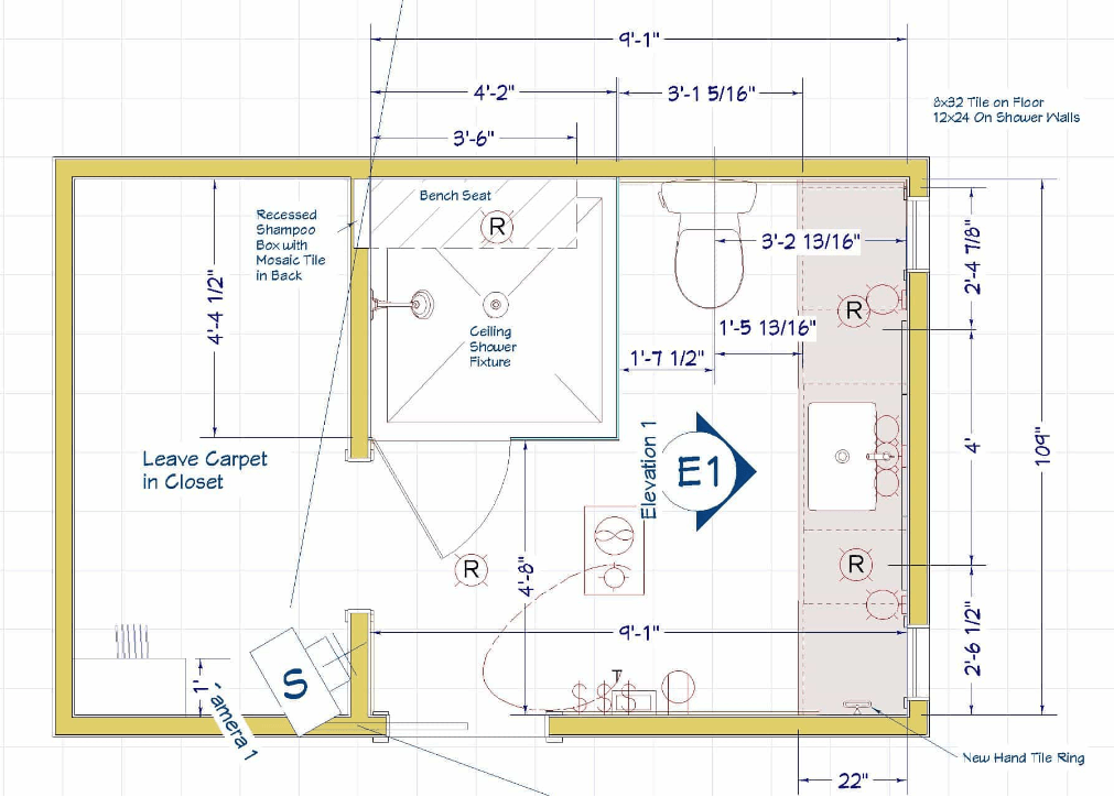
The existing bathroom was dated and ready for a makeover. The shower was made wider with a low profile base for easy entry. The frameless glass shower enclosure makes the bathroom feel more open and shows off the tile work. The new vanity cabinets are more functional complete with soft close drawers & doors. The new zodiac quartz top is a no maintenance surface.
Floorplans with Before & After Images
Related Projects
Related Projects










