Yankee Kitchen
Yankee Kitchen
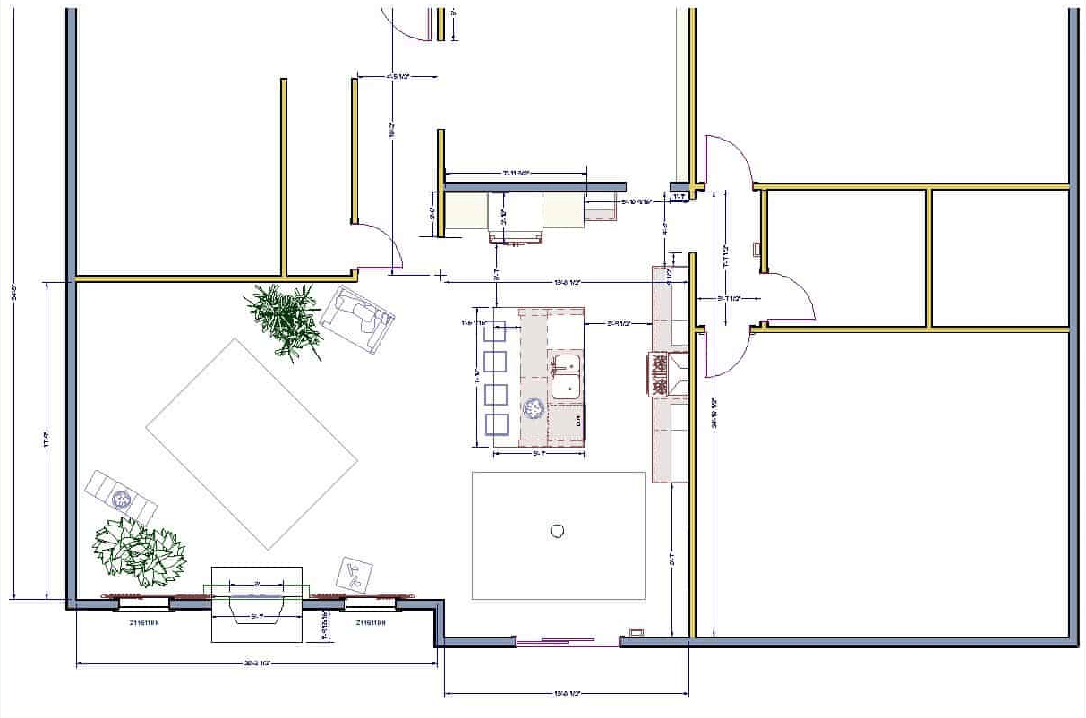
The Yankees in Smithton Estates are a young family with busy lives. Jim and Jessie Yankee looked to Kerry Bramon Remodeling and Design to transform their kitchen to keep pace. Designer Angela Holloway’s plan removed a wall so that the kitchen and living room could be combined into one large, open family space. This major change meant Jessie no longer had to feel isolated from the family when preparing meals in the kitchen. KBRD matched tiger wood flooring and added a tile floor to the sleek, clean-lined kitchen for durable, easy cleanup. An oversized island in the middle of the space, lit by modern pendant lighting, makes a perfect hub for the family. Custom birch cabinetry with a rich espresso stain and quartz countertops complete the dramatic, modern look.
The most dramatic change by KBRD in this kitchen renovation (and Jessie’s favorite part) was the removal of a wall, changing the living room and kitchen into a large, open, family-friendly space.











