Sterchi Bath
Sterchi Bath
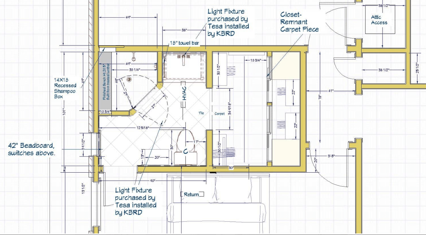
Having the bed placed to get the best view was a priority. The door into the closet was eliminated which provided a long wall to place the bed against. New access in the closet was provided through the new master bath. The tub was removed and replaced with a corner shower. The original built-in closets were saved.











