Gessling Kitchen
Gessling Kitchen
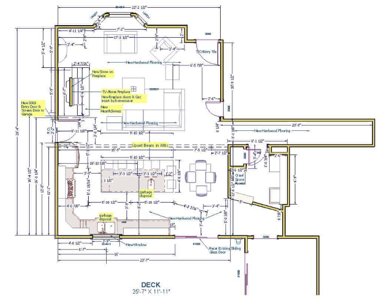
Entertaining with family became difficult with lack of counterspace and limited seating. With lots of cooking, it became important to have the counters taller and deeper with a good amount of floorspace for family to flow through. The paneling made the space dark and closed off. The newly remodeled space is open to the family room with a new stone fireplace surround, an island with plenty of seating, and a second prep station with the sink in the island.
Lyptus wood cabinets, and Cambria quartz countertops. The new custom cabinets feature soft close drawers and doors, dovetail drawers, fluted columns at the island, and many more custom accessories.














